В соответствии со статьями 42, 45 Градостроительного кодекса Российской Федерации, статьей 12 Правил землепользования и застройки в городе Рязани, утвержденных решением Рязанской городской Думы от 11.12.2008 № 897-I, заключением от 13.03.2026 № 02-05-42-Исх о соответствии документации «Проект изменений в документацию «Проект планировки территории, подлежащей комплексному развитию, в границах улиц: Стройкова, 14-я Линия, Осипенко в городе Рязани», утвержденную постановлением администрации города Рязани от 14.04.2023 № 4684» требованиям градостроительного законодательства, подготовленным администрацией города Рязани, руководствуясь статьями 39, 41 Устава муниципального образования – городской округ город Рязань, постановлением администрации города Рязани от 12.12.2025 № 12189 «О делегировании отдельных полномочий главы администрации города Рязани первому заместителю главы администрации Лощинину Д.Н.», администрация города Рязани п о с т а н о в л я е т:
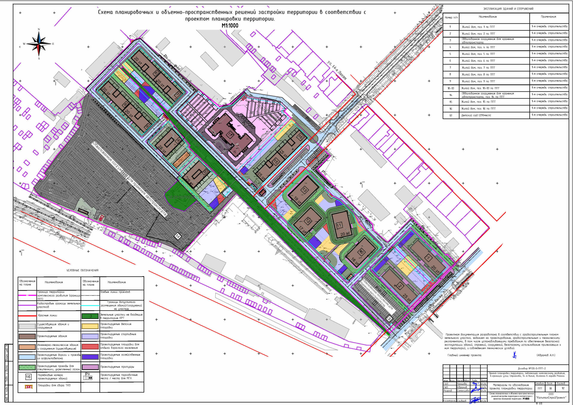
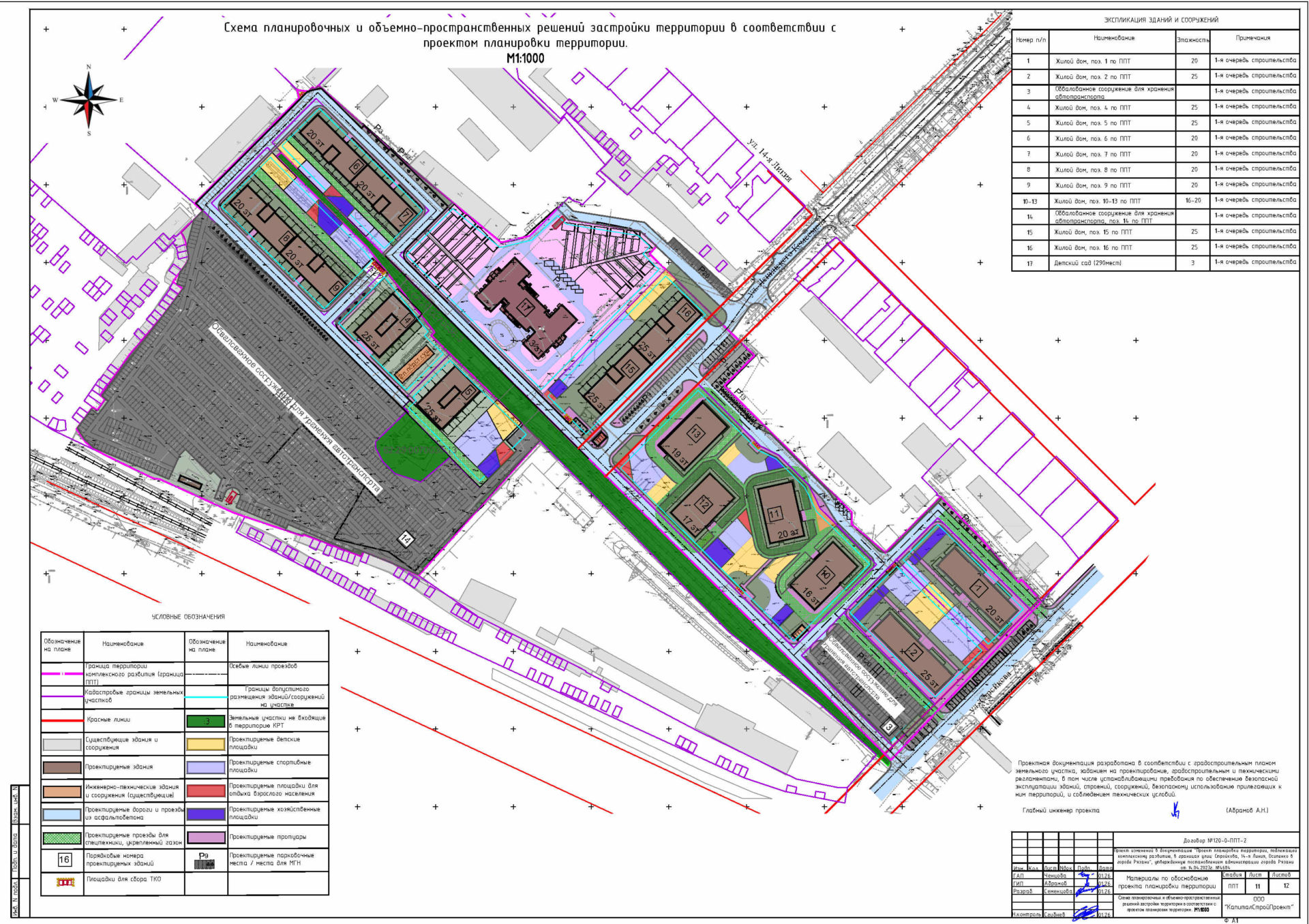
1. Утвердить документацию «Проект изменений в документацию «Проект планировки территории, подлежащей комплексному развитию, в границах улиц: Стройкова, 14-я Линия, Осипенко в городе Рязани», утвержденную постановлением администрации города Рязани от 14.04.2023 № 4684».
2. Управлению градостроительства и архитектуры администрации города Рязани (Наумов М.В.) обеспечить размещение документации, указанной в пункте 1 настоящего постановления, на официальном сайте администрации города Рязани в сети Интернет https://admrzn.ryazan.gov.ru в течение 7 дней со дня утверждения.
3. Управлению информационной политики и социальных коммуникаций аппарата администрации города Рязани (Щербакова И.И.) опубликовать настоящее постановление в газете «Рязанские ведомости» и документацию, указанную в пункте 1 настоящего постановления, в сетевом издании «Рязанские ведомости» https://rv-ryazan.ru в течение 7 дней со дня издания.
4. Настоящее постановление вступает в силу со дня его официального опубликования.
5. Контроль за исполнением настоящего постановления оставляю за собой.
Первый заместитель главы администрации Д.Н. Лощинин
Примечание: Полная версия документации «Проект изменений в документацию «Проект планировки территории, подлежащей комплексному развитию, в границах улиц: Стройкова, 14-я Линия, Осипенко в городе Рязани», утвержденную постановлением администрации города Рязани от 14.04.2023 № 4684» размещена на сайте администрации города Рязани в разделе «Деятельность/Градостроительство и архитектура/Документация по планировке территории/ Проект изменений в документацию «Проект планировки территории, подлежащей комплексному развитию, в границах улиц: Стройкова, 14-я Линия, Осипенко в городе Рязани», утвержденную постановлением администрации города Рязани от 14.04.2023 № 4684








